-
Einzelappartment (33 m²)
Art
Einzelappartement
Größe
33,57 m²
Derzeitiges monatl. Nutzungsentgelt
447,02 €
Die im Nutzungsgeld enthaltenen Leistungen siehe oben.
-
Einzelappartment (35 m²)
Art
Einzelappartement
Größe
35,22 m²
Derzeitiges monatl. Nutzungsentgelt
468,22 €
Die im Nutzungsgeld enthaltenen Leistungen siehe oben.
-
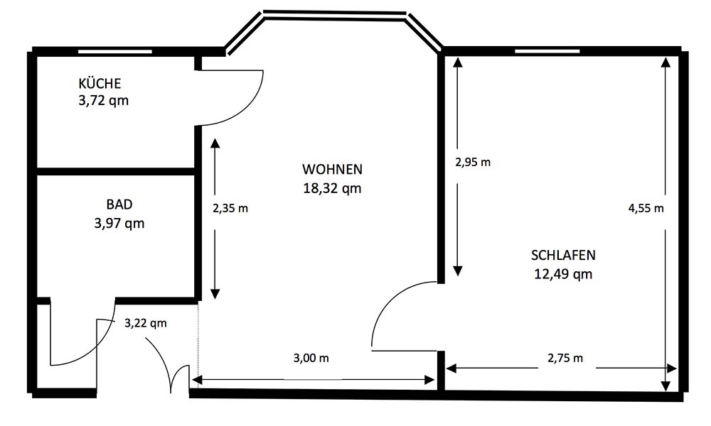
Doppelappartment (41 m²)
Art
Doppelappartmenet
Größe
41,72 m²
Derzeitiges monatl. Nutzungsentgelt
572,20 €
Die im Nutzungsgeld enthaltenen Leistungen siehe oben.
Haus Elisabeth – Seniorenwohnungen mit Sicherheit und Anschluss
Im Betreuten Wohnen im Haus Elisabeth leben Sie selbstständig in Ihrer eigenen Wohnung – und profitieren gleichzeitig von Sicherheit, kurzen Wegen und Angeboten im Haus. Die Seniorenwohnungen sind mit Notrufanlage ausgestattet, alle Etagen sind per Aufzug erreichbar, und im direkten Umfeld finden Sie alles für den täglichen Bedarf.
Das Betreute Wohnen im Haus Elisabeth bietet umsorgtes Wohnen und Leben im Alter in insgesamt 48 Seniorenwohnungen für rüstige Seniorinnen und Senioren, darunter acht Doppelappartements. Der Haupteingang befindet sich in der Frankenstraße. Über einen Verbindungstrakt ist der Bereich zudem direkt mit dem Altenheim Haus Elisabeth verbunden – ideal, wenn Nähe und kurze Wege wichtig sind.
Die Appartements werden – mit Ausnahme einer kleinen Einbauküche – unmöbliert vermietet. Im Badezimmer befinden sich WC, Waschbecken sowie eine ebenerdige Dusche, sodass der Alltag komfortabel und seniorengerecht gestaltet ist.
Alle Etagen des Hauses sind bequem mit dem Aufzug erreichbar. Zusätzlich verfügt jedes Appartement über eine Notrufanlage, über die im Notfall schnell Hilfe angefordert werden kann.
Auf Wunsch können Bewohnerinnen und Bewohner des Betreuten Wohnens am Mittagstisch teilnehmen. Diese Leistung ist nicht im monatlichen Nutzungsentgelt enthalten und wird direkt über Essensmarken mit der Küche abgerechnet.
Auch das Gemeinschaftsleben kommt nicht zu kurz: In der hauseigenen Kapelle finden wöchentlich zwei katholische Gottesdienste statt, und einmal monatlich ist die Christuskirchengemeinde zu Gast. Im Haus gibt es außerdem einen Friseur, und die Cafeteria ist für Bewohnerinnen und Bewohner des Betreuten Wohnens täglich geöffnet.
Der großzügig angelegte Garten lädt zum Verweilen, Entspannen und zur Begegnung mit anderen ein. Zudem befinden sich im näheren Umkreis eine Bushaltestelle, Bäckerei, Einkaufsmöglichkeiten, Apotheke sowie weitere Einrichtungen für den täglichen Bedarf – ein wichtiger Vorteil für ein selbstständiges Leben im Alter.

Die youngcaritas im Märkischen Kreis bei Instagram
Pflege Caritasverband Altena-Lüdenscheid e.V. bei Instagram
Pflege Caritasverband Altena-Lüdenscheid e.V. bei Facebook